Direkt zum Seiteninhalt

Zahnarztpraxis Dr. med. dent. Linda Heierle, Aarau - Marcel Baechler - Innenarchitektur, Architektur & Praxisplanung

Dr. med. dent. Linda Heierle Zahnarztpraxis, Aarau

Auftraggeber: Dr. med. dent. Linda Heierle
Realisierung: 2024-2025
Auftragsart: Direktauftrag

Innenarchitektur: Marcel und Noëlle Baechler
Bauleitung: Marcel und Noëlle Baechler
Tapetendesign: Marina Batschelet

Im zweiten Obergeschoss eines bestehenden Geschäftshauses in Aarau entstand eine neue Zahnarztpraxis, deren Gestaltung die Balance zwischen Funktionalität und einem einladenden Ambiente sucht.

Wir standen vor der Herausforderung, innerhalb der bestehenden Gebäudestruktur ein Konzept zu entwickeln, das sowohl den hohen technischen Anforderungen der modernen Zahnmedizin entspricht als auch eine angenehme Atmosphäre für die Patienten schafft.

Eine detaillierte Analyse der Räumlichkeiten bildete die Grundlage für den Entwurf. Ziel war es, eine Umgebung zu gestalten, die fortschrittliche Technologie mit einem beruhigenden Gestaltungskonzept vereint. Die Farbgebung der Wände und Decken orientiert sich an sanften, erdigen Tönen – Juragrau und Lavagrau dominieren das Erscheinungsbild und korrespondieren harmonisch mit dem warmen Eichenboden. Diese Material- und Farbwahl trägt dazu bei, eine entspannte Atmosphäre zu erzeugen, die dem oft mit Stress behafteten Zahnarztbesuch entgegenwirkt. Der Empfangsbereich empfängt die Patienten mit warmem Holz und einer zurückhaltenden Beleuchtung, die gezielt eingesetzt wird, um Geborgenheit zu vermitteln. Im angrenzenden Wartebereich sorgen komfortable Sitzgelegenheiten für eine angenehme Aufenthaltsqualität und eine entspannte Wartezeit.

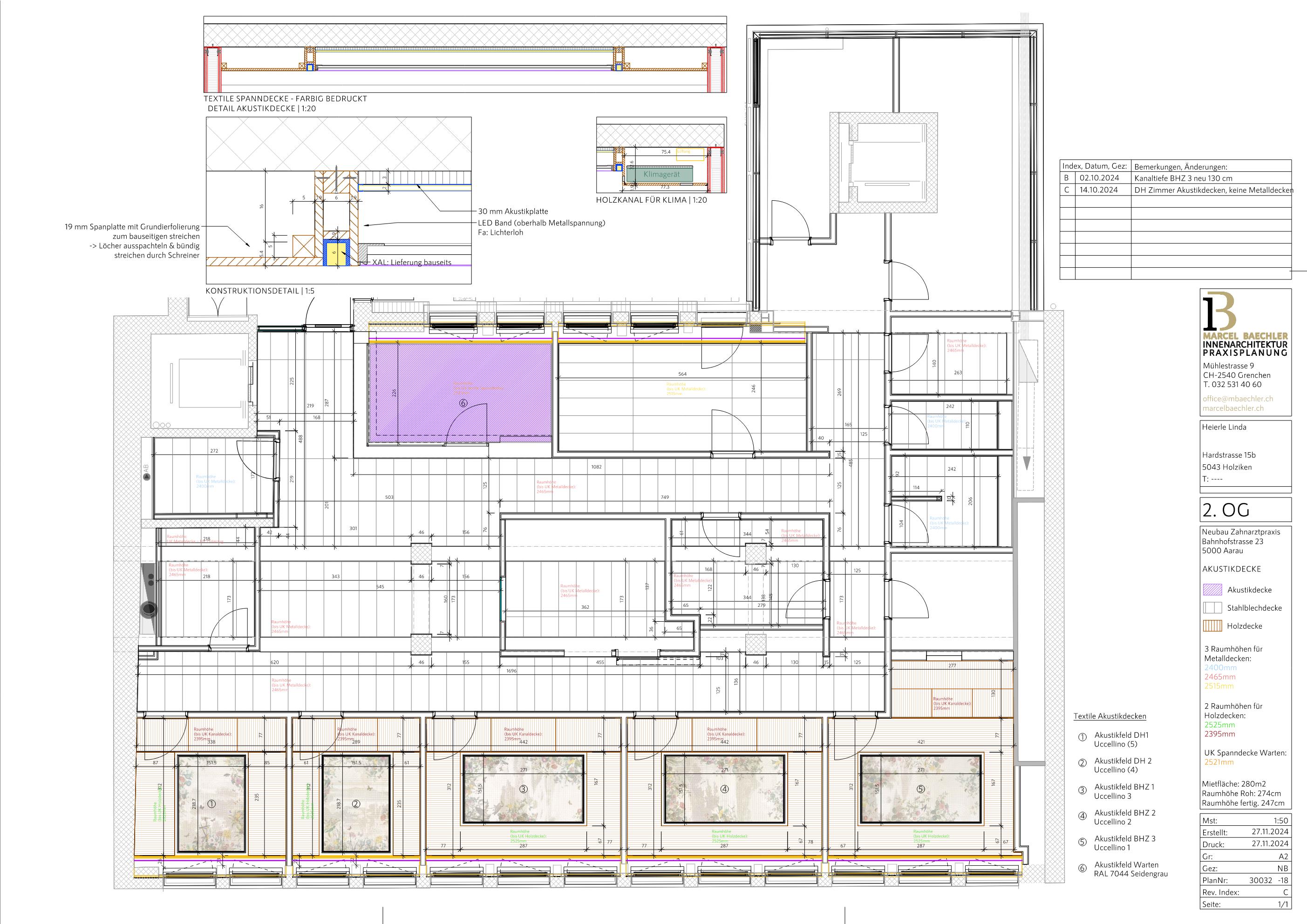
In den Behandlungsräumen stehen Funktionalität und Ästhetik gleichermassen im Fokus. Speziell gestaltete Tapeten und Deckenfelder setzen Akzente und schaffen eine visuelle Abwechslung, die das Wohlbefinden der Patienten unterstützt. Grosse Fenster lassen viel Tageslicht in die Räume und bieten einen Blick auf die Stadt Aarau, während akustische Massnahmen für eine ruhige Umgebung sorgen und die notwendige Privatsphäre garantieren.

Die technische Ausstattung der Räume entspricht dem neuesten Stand der Zahnmedizin und ermöglicht eine optimale Behandlung. Ein besonderer Gestaltungswunsch der Auftraggeberin war, dass weder Wände noch Decken in klassischem Weiss gehalten werden. Dies führte zu einer konsequent durchdachten Material- und Farbwahl, die die Praxis unverwechselbar macht und ihr eine eigenständige, moderne Identität verleiht. Trotz der architektonischen Vorgaben des Bestandsgebäudes gelang es uns, einen Raum zu schaffen, der höchste funktionale Anforderungen erfüllt und zugleich eine Atmosphäre der Ruhe und Behaglichkeit ausstrahlt.

Wir waren verantwortlich für die Innenarchitektur, Visualisierung, Baueingabe sowie Elektro-, Sanitär- und Ausführungsplanung. Zudem übernahmen wir die Bauleitung und gestalteten die gesamte Raum- und Gebäude Signaletik.
Dank vieler innovativer Unternehmen aus der Region wurde der Neubau in einer beeindruckenden Zeitspanne von nur 12 Wochen realisiert. An dieser Stelle möchten wir allen Mitwirkenden herzlich danken.


Visualisierung | Realitätsfoto (Schieber nach Links und Rechts bewegen)
Line
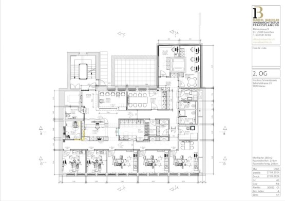
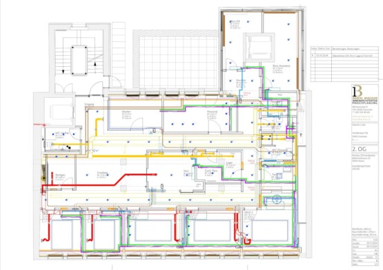
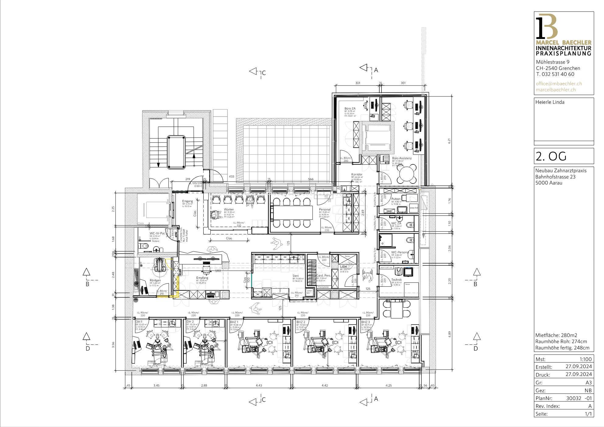
Ausführungspläne und Visualisierungen
Rundgang durch die Zahnarztpraxis
Line
Zurück zum Seiteninhalt