Direkt zum Seiteninhalt

Praxisplanung Mund-, Kiefer- und Gesichtschirugie - Marcel Baechler - Innenarchitektur, Architektur & Praxisplanung

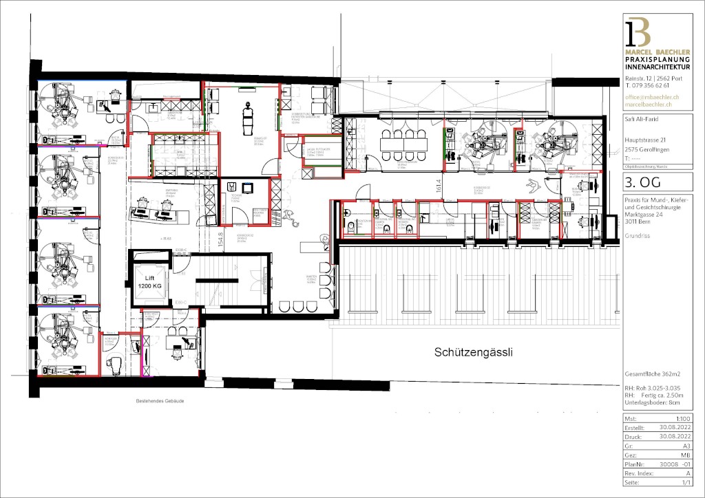
Craniologicum, Praxis für Mund-, Kiefer- und Gesichtschirurgie, Bern

Auftraggeber: Craniologicum Bern
PD Dr. med. Dr. med. dent. Ali-Farid Safi
Realisierung: 2022
Auftragsart: Direktauftrag

Innenarchitektur: Marcel Baechler, Innenarchitekt vsi.asai.
Bauleitung: Marcel Baechler, Innenarchitekt vsi.asai.

Im Auftrag von Dr. med. A. Safi und Dr. S. Safi erhielten wir die Aufgabe, das dritte Obergeschoss der Praxis für Mund-, Kiefer- und Gesichtschirurgie Craniologicum in Bern zu gestalten. Die Räumlichkeiten befanden sich zuvor in den ehemaligen Personalbereichen des Coop. Unser Verantwortungsbereich umfasste die gesamte Entwurfs- und Ausführungsplanung, einschliesslich der Sanitär- und Elektroplanung.

Das Ziel war es, eine moderne und edle Arztpraxis zu schaffen, die den Patienten beim Betreten sofort ein Gefühl von Qualität und Schönheit vermittelt. Die Wünsche unserer Auftraggeber standen dabei im Mittelpunkt der Planung.

In enger Zusammenarbeit mit Herrn Dr. med. A. Safi und seiner Frau Dr. med. dent. S. Safi entwickelten wir mittels Moodboards ein stimmiges Konzept für die Materialwahl. Der Einsatz von Materialien im Marmorlook sowie goldene Akzente wurden als zentrale Elemente identifiziert, um der Praxis eine luxuriöse Ausstrahlung zu verleihen.

Ein besonderes Highlight der Gestaltung ist die Bepflanzung mit echten Pflanzen, die mumifiziert wurden, um Pflegeleichtigkeit mit natürlicher Ästhetik zu verbinden. Diese innovative Idee wurde massgeblich von Frau Dr. S. Safi inspiriert und unterstützt.

Die neue Praxis vereint Funktionalität mit einem hohen ästhetischen Anspruch und bietet den Patienten ein angenehmes Ambiente, das Vertrauen schafft und Wohlbefinden fördert. Die sorgfältige Auswahl der Materialien sowie die einzigartige Bepflanzung tragen wesentlich zur besonderen Atmosphäre bei.

Visualisierung | Realitätsfoto (Schieber nach Links und Rechts bewegen)
Vor- | Nachher (Schieber nach Links und Rechts bewegen)
Line
Zurück zum Seiteninhalt