Direkt zum Seiteninhalt

Praxisplanung Ophthalmologie (Augenarztpraxis) - Marcel Baechler - Innenarchitektur, Architektur & Praxisplanung


Augenarzt Kaeser - Ophthalmologie Praxis | Solothurn

Auftraggeber: Dr. med. Phil Kaeser Solothurn
Realisierung: 2018
Auftragsart: Direktauftrag

Innenarchitektur: Marcel Baechler, Innenarchitekt vsi.asai.
Bauleitung: Marcel Baechler, Innenarchitekt vsi.asai.

Dr. Kaeser kam direkt zu uns, weil er bereits gutes von uns gehört hat und er wusste, dass wir nicht zum ersten Male einen Augenarzt planen.
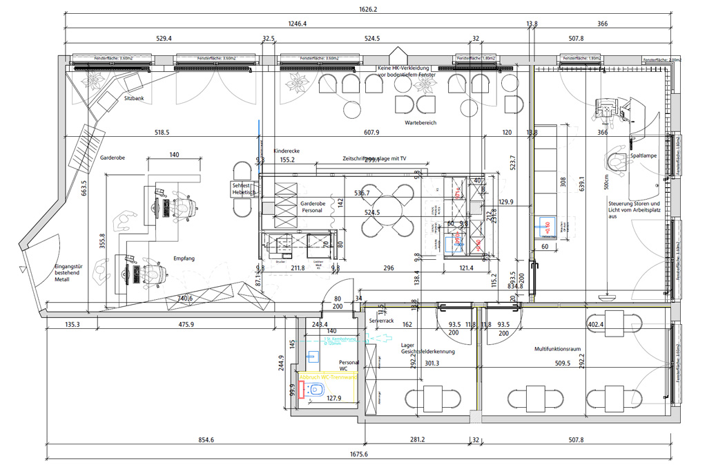
Bei seinem Projekt war die Herausforderung der zeitliche Ablauf. Seine Zeitvorgabe waren äusserst knapp, da wir zuerst ein Umnutzungsgesuch bei der Stadt Solothurn eingeben mussten. Dank dem Goodwill der Stadt Solothurn konnten wir bereits nach sechs Wochen mit dem Umbau beginnen, der sechs Wochen dauerte. Leider hatten wir noch mit Asbest im Gebäude zu tun, was uns Zeit kostete. Bei der Gestaltung der Praxis liess er uns freie Hand und wir konnten ihm mittels skizzierten Ideen unsere Ideen aufzeigen und das nun gezeigte Projekt unkompliziert planen und umsetzen.

Line
Line
Zurück zum Seiteninhalt