Direkt zum Seiteninhalt

Innenarchitektur Hausumbau Seeland - Marcel Baechler - Innenarchitektur, Architektur & Praxisplanung


Umbau Einfamilienhaus

Auftraggeber: Privat, Seeland
Realisierung: 2021 - 2022
Auftragsart: Direktauftrag

Innenarchitektur: Marcel Baechler, Innenarchitekt vsi.asai.
Bauleitung: Marcel Baechler, Innenarchitekt vsi.asai.

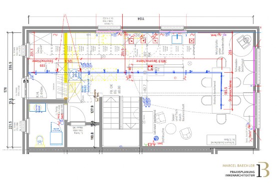
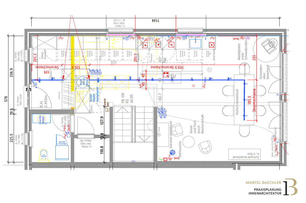
Unsere privaten Auftraggeber gaben uns den Auftrag Ihr Erdgeschoss mit der Küche zu überdenken und neu zu gestalten. Das Dachgeschoss gefiel Ihnen nicht mehr und Sie wollten das für Ihre Bedürfnisse zurechtmachen lassen. Sie waren für alle Ideen offen. Zentraler Bestandteil war die Sauna im Dachgeschoss zu erneuern.

Unser Bestreben war es eine einheitliche Gestaltung in die Räume zu bringen und die Geschosse miteinander gestalterisch zu verbinden.
Vor- | Nachher (Schieber nach Links und Rechts bewegen)
Line
Zurück zum Seiteninhalt